Quadrifamiliare in vendita

Volta Mantovana, Via Adda
€ 395.000
4 locali 4 locali
155 Mq 155 Mq
2 bagni 2 bagni

Quadrifamiliare in vendita

Volta Mantovana, Via Adda

Descrizione annuncio

Proponiamo in vendita a Volta Mantovana
All’interno di un esclusivo contesto residenziale, riservato e immerso nel verde, sorge un nuovo ed elegante progetto abitativo che coniuga architettura moderna, comfort e sostenibilità.

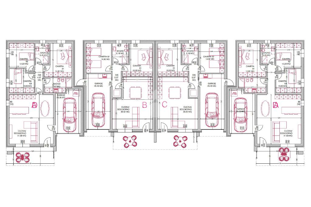
Le nuove ville quadrifamiliari, dalla superficie commerciale di circa 135 mq, sono sviluppate interamente su un unico livello e rappresentano la sintesi ideale tra funzionalità e stile, concepite per offrire un’esperienza abitativa di elevato standard qualitativo.

Villa A e Villa B (consultare planimetrie) si caratterizzano per un’ampia e luminosa zona giorno open space, dove cucina e soggiorno si fondono armoniosamente e si aprono verso l’esterno grazie a grandi vetrate che affacciano sul giardino privato, garantendo continuità visiva e una piacevole sensazione di apertura.

La zona notte, sapientemente separata dall’area living, accoglie tre camere da letto di generose dimensioni, ideali per ospitare la famiglia o garantire spazi dedicati agli ospiti. Completano la distribuzione interna due bagni, eleganti e funzionali.

Un garage singolo, collegato direttamente all’abitazione, completa la proprietà.

All’esterno, il giardino su tre lati offre spazi di privacy e relax, valorizzati dalla presenza di un portico coperto di circa 17 mq, ideale per vivere momenti conviviali in ogni stagione.

L'immobile è realizzato secondo i più alti standard costruttivi, in Classe Energetica A1, con riscaldamento a pavimento, infissi in PVC ad alto isolamento termoacustico, cappotto termico, predisposizione per impianto fotovoltaico e impianto di domotica integrato per il controllo intelligente delle principali funzioni della casa.

Mostra tutto

Nelle vicinanze

Trasporto pubblico Trasporto pubblico
Trasporto pubblico
320 m
Scuole Scuole
Istituto Comprensivo Volta Mantovana
1,3 Km
Farmacia Farmacia
Farmacia Comunale di Volta Mantovana
700 m
Farmacia Zavarise
770 m
Ospedali Ospedali
Ospedale Civile di Volta Mantovana s.r.l.
870 m
Supermercati Supermercati
D più
690 m
Martinelli
1,8 Km
Negozi Negozi
pin up abbigliamento
610 m
Creazioni Bimbo
710 m
South Beach
740 m
Stockmania
740 m
Ammirando
760 m
Bar Bar
Bar Roma da Corrado
330 m
Bar
630 m
L'Officina
630 m
Caffè Garibaldi
690 m
Plaza Café
720 m
Ristoranti Ristoranti
Miramonti Pizzeria Ristorante
700 m
Tam Tam
740 m
Corte Zuccona
770 m
Trattoria La Stangada
780 m
Enoteca Gonzaga
860 m
Mostra tutto

Caratteristiche

Rif.:
61108399
Piano:
1 di 1 (Piano terra con giardino)
Box:
1
Posti auto:
1
Camere da letto:
3
Arredamento:
Assente
Mostra tutto
Prezzo Prezzo
€ 395.000
Rata mutuo Rata mutuo
€ 1.884 / mese
Spese annue Spese annue
€ 0
Proponi il tuo prezzoProponi il tuo prezzo

Classe Energetica

A1
A1
A1
A1
A1
A1
A1
A1
A1
EP invernale del fabbricato:
EP estiva del fabbricato:
Anno di costruzione:
2025
Riscaldamento:
Autonomo
Tipo impianto:
A pavimento
Tipo alimentazione:
Metano

Ti interessa visionare l'immobile?

Fissa un appuntamento  Fissa un appuntamento

Richiedi informazioni

Clicca su Leggi per aprire l'informativa
* Questi campi sono obbligatori

Calcola il tuo mutuo

Semplice e senza impegno
Anticipo

( % )
Mutuo

( % )

pochi semplici passi

inserisci i tuoi dati
Questionario completato
Grazie per aver richiesto un appuntamento senza impegno con un nostro Consulente del Credito e Assicurativo.

Hai inserito correttamente tutti i dati necessari e a breve riceverai una e-mail con un link da convalidare per inviare i tuoi dati.
Affiliato
Gea Srl
St.da Statale Goitese, 300 46044 Goito (MN)

Il nostro staff


  • Matteo Tomasoni
    Affiliato

  • Silvia Franceschi
    Coordinatrice

  • Lidiya Mullina
    Affiliata

  • Marco Tomasoni
    Collaboratore
St.da Statale Goitese, 300 46044 Goito (MN)
Zona: Goito-Guidizzolo-Volta Mantovana-Rodigo-Rivalta S/M-Cavriana
Mostra su mappa
Orari: Lunedì-venerdì 09.00 - 12.30 15.00 - 19.30 Sabato 09.00 - 12.30
Affiliato
Gea Srl
St.da Statale Goitese, 300 46044 Goito (MN)

2026 Tecnocasa Franchising S.p.A. - P. IVA 08365160152 - Via Monte Bianco 60/A 20089 Rozzano (MI). Ogni agenzia ha un proprio titolare ed è autonoma. Privacy policy | Policy utilizzo | Cookie policy